Писсуар радарного типа Sanela SLP 14R / SLP 14RZ Joly

59 100 руб.



Общие характеристики
Страна: Чехия
Производитель: Sanela
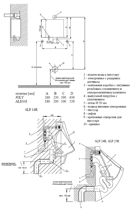
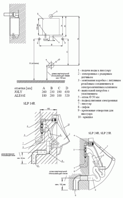
Размер:
*Писсуар (с крышкой) с радарным датчиком Joly

смывное устройство комплектно скрыто за задней стеной писсуара
реагирует только на прямое пользование писсуаром (анализирует измения которые возникают внутри писсуара при протекании жидкости)
не реагирует ни на стоящие, ни на проходящие
продолжительность смыва может настраиваться в пределах 0,5 - 15,5 сек.
время активации (мин. время изменений внутри писсуара при протекании жидкости анализированое радарным устройством необходимым для автоматического смыва) может настраиватся в пределах 6 - 15 сек.
настройка параметров при помощи дистанционного управления SLD 04 без необходимости демонтажа писсуара (акустическая индикация настройки)
самодействующий смыв по истечении 6 часов от последнего смыва
возможность регуляции расхода воды шаровым вентилем
после смыва устройство выполнит краткое дополнение сифона водой
SLP 26R – арт. № 01264, SLP 27R – арт. № 01274 керамический писсуар со встроенным радарным устройством смыва; монтажная пластмассовая коробка с латунным резьбовым соединением, электромагнитным клапаном и шаровым вентилем; выпускной патрубок с уплотнением; сифон; крепежный комплект
SLP 26RZ – арт. № 01265, SLP 27RZ – арт. № 01275 керамический писсуар со встроенным радарным устройством смыва; монтажная пластмассовая коробка с латунным резьбовым соединением, встроенным источником питания, электромагнитным клапаном и шаровым вентилем; выпускной патрубок с уплотнением; сифон; крепежный комплект

Размер требуемой монтажной ниши для монтажа пластмассовой коробки в стену приб. 150 x 150 x 80 мм
Питающее напряжение
- SLP 26R, 27R 24 В пост.
- SLP 26RZ, 27RZ 230В /50 Гц.
Потребляемая мощность 0,8 Вт. (сост. покоя) 10 Вт. (при включ. вент.)
Рабочее давление 0,1 - 0,8 MПа
Расход воды 12 л/мин. (инф. пар.)
Подача воды наруж. резьба G ?"
Выход воды выпускной патрубок с уплотнением

Возможные варианты

SLP 14RZ с радарным датчиком, со встроенным источником питания 46182 руб.


Дополнительно:

SLZ 01Y – арт. № 05012
источник питания 230/24 В пост. для электропитания макс. 3 устройств

SLZ 01Z – арт. № 05011
источник питания 230/24 В пост. для электропитания макс. 5 устройств

SLD 04 – арт. № 07040
дистанционное управление для настройки параметров радарного устройства

SLR 01R – арт. № 08012
монтажная рама для писсуара JOLY

========================================================================

Посмотреть пульты ДУ

Посмотреть сенсоры

Посмотреть внешние источники питания


Посмотреть рамы для монтажа

Наша компания доставит купленный Вами товар собственным транспортом в любое удобное для Вас время и день, включая выходные.

Стоимость доставки 1000 руб.

Санкт-Петербург:
Доставка до подъезда составляет 1000 рублей (независимо от объема). Доставка за пределы КАД оплачивается отдельно (45 рублей за 1 километр)

Москва и Московская область:
Доставка до подъезда в Москве составляет 1000 рублей (независимо от объема). Доставка за пределы МКАД оплачивается отдельно (45 рублей за 1 километр).

Другие регионы России:
Доставку товаров мы осуществляем совместно с партнерами - лучшими отечественными экспедиторскими компаниями. Об условиях оплаты доставки товара в Ваш город Вас проконсультирует менеджер компании.

Возможен подъем товара на этаж (по согласованию с экспедитором).

- Наличным платежом при достакве товара
- Банковским переводом

Наши реквизиты:

"Сантехника для дома" ИП Андреев А.В.

Свидетельство о гос. Регистрации физического лица в качестве индивидуального предпринимателя (ОГРНИП) 305770000040354

ИНН 772729311097

Банковские реквизиты:

р/с 40802810938060052465
в Царицынское отделение № 7978 Сбербанка России ОАО
к/с 30101810400000000225
БИК 044525225

Заказ обратного звонка ×
Уважаемые покупатели!

Закажите обратный звонок и наши сотрудники обязательно свяжутся с Вами.

Это поле, обязательно для заполнения!
Это поле, обязательно для заполнения!
* - поля, обязательные для заполнения.

Внимание!

Фильтром не пользоватся. Возможны высокие нагрузки и отключения сайта на хостинге!


Спасибо за понимание.
Приятных покупок!

×